สวัสดีครับแฟนเพจที่รักทุกๆ ท่าน กลับมาพบกันในทุกๆ วันเสาร์แบบนี้อีกครั้งหนึ่งซึ่งผมก็จะมาพบกับเพื่อนๆ เพื่อที่จะพูดคุยกันถึงหัวข้อ “ถาม-ตอบชวนสนุก” กันนะครับ โดยที่ในวันนี้ประเด็นที่ผมได้เลือกนำเอามาตั้งเป็นคำถามประจำสัปดาห์นั้นจะมีความเกี่ยวข้องกันกับเรื่อง ความรู้ดีๆ เรื่องวิศวกรรมงานฐานราก งานดินและเสาเข็ม ที่ผมได้ทำการโพสต์ถึงในสัปดาห์ที่ผ่านมาและก็เหมือนเช่นเคยผมคงจะต้องออกตัวอีกครั้งหนึ่งว่า คำถามประจำสัปดาห์นี้สุดแสนจะง่ายมากๆๆๆๆๆๆๆๆๆ โดยที่โจทย์ในวันนี้ก็คือ จากรูปที่ผมได้แนบมาในโพสต์ๆ นี้จะแสดงให้เห็นถึงแบบแปลนของโครงสร้างฐานรากที่ใช้เสาเข็มจำนวน 2 ต้น หรือ F2 ในการรับน้ำหนักแต่ผลจากการตอกเสาเข็มก็พบว่า มีโครงสร้างเสาเข็มจำนวน 1 ต้นที่หักไป ทำให้เราไม่สามารถที่จะใช้โครงสร้างเสาเข็มต้นนี้ในการรับน้ำหนักของโครงสร้างได้ หากผมเป็นผู้ออกแบบและได้ทำการตั้งสมมติฐานในการออกแบบฐานรากต้นนี้ว่า เป็นจุดรองรับอย่างง่ายหรือว่า PINNED SUPPORT ซึ่งจะต้องทำหน้าที่ในการรับน้ำหนักที่เป็นแรงกระทำตามแนวแกนที่ถูกถ่ายผ่านมาจากโครงสร้างเสาตอม่อโดยที่จะไม่มีแรงโมเมนต์ดัดเกิดขึ้นเลย คำถามในวันนี้ก็มีความง่ายดายสุดๆๆๆๆ เลยนั่นก็คือ หากเพื่อนๆ ต้องทำหน้าที่เป็นวิศวกรที่ต้องทำการควบคุมการทำงานในโครงการก่อสร้างแห่งนี้ เพื่อนจะเลือกทำการตอกเข็มแซมให้เป็นไปตามรูปใด ระหว่างรูป (A) หรือรูป (😎 จึงจะเป็นการดีที่สุดต่อโครงสร้างฐานราก F2 ต้นนี้ครับ ? ทั้งนี้เพื่อนๆ ยังสามารถที่จะให้เหตุผลต่างๆ หรือ อาจจะทำการสเก็ตช์ภาพประกอบคำตอบเพื่อใช้อธิบายเพิ่มเติมได้ แล้วยังไงวันพรุ่งนี้ผมจะขออนุญาตมาทำการเฉลยคำถามข้อนี้ให้แก่เพื่อนๆ ทุกคนได้รับทราบพร้อมๆ กันนะครับ หวังว่าความรู้เล็กๆ น้อยๆ ที่ผมได้นำมาฝากแก่เพื่อนๆ ทุกๆ ท่านจากคำถามในวันนี้น่าที่จะมีประโยชน์ต่อทุกๆ […]
Monthly Archives: September 2021
เพื่อฐานราก ของโครงสร้างใหม่ที่มีคุณภาพ ติดตั้งโดยผู้เชี่ยวชาญ ด้วยเสาเข็มสปันไมโครไพล์ Spun Micro Pile และเสาเข็มไอไมโครไพล์ I-Micropile ภูมิสยาม การสร้างใหม่ ไม่ว่าจะงานเล็กหรืองานใหญ่ ก่อนลงเสาเข็ม ต้องมีการเจาะสำรวจดิน เพราะดินในแต่ละพื้นที่ มีระดับของชั้นดินที่ไม่เท่ากัน หากตอกเสาเข็มโดยที่ไม่มีการเจาะสำรวจดิน อาจส่งผลให้เกิดการทรุดตัวที่ไม่เท่ากัน และต้องมีการทำรายการคำนวณ และได้รับคำแนะนำ จากวิศวกรมืออาชีพ เพื่อเลือกใช้เสาเข็มที่เหมาะสมกับหน้างานมากที่สุด เพราะหากเลือกใช้เสาเข็มผิดประเภท หรือผิดขนาด อาจส่งผลทำให้เสาเข็มเกิดการแตกหักระหว่างติดตั้ง และไม่สามารถมองเห็นได้ เนื่องจากปลายเสาเข็มได้ตอกลงไปลึกถึงชั้นดินด้านล่างแล้ว ทำให้การรับน้ำหนักไม่ได้มาตรฐาน ส่งผลทำให้เกิดการทรุดตัวในอนาคต ดังนั้นการเลือกเสาเข็ม และเลือกปรึกษากับทีมงานผู้เชี่ยวชาญ จึงเป็นสิ่งสำคัญที่ทำให้ การตอกเสาเข็มออกมาอย่างถูกต้องตามหลักวิศวกรรม และการรับน้ำหนักที่ปลอดภัย เราขอแนะนำ เสาเข็มสปันไมโครไพล์ และเสาเข็มไอไมโครไพล์ ภูมิสยาม เสาเข็มคุณภาพ ที่ได้รับ มาตรฐานเสาเข็มคอนกรีตเสริมเหล็กแบบแรงเหวี่ยง มอก.397-2562 และมาตรฐานเสาเข็มคอนกรีตเสริมเหล็กอัดแรงหล่อสำเร็จ มอก.396-2549 หากสนใจเสาเข็ม เพื่องานสร้างใหม่ ที่ต้องการความมั่นคงแข็งแรงสูง เพื่อยกระดับฐานราก ปรึกษาภูมิสยาม เรายินดีให้คำแนะนำ โดยวิศวกรมืออาชีพ ที่มีประสบการณ์ เสาเข็มได้รับอนุญาตแสดงเครื่องหมายมาตรฐาน การออกแบบการผลิตและตอก ISO […]
สวัสดีครับแฟนเพจที่รักทุกๆ ท่าน กลับมาพบกันในทุกๆ วันพุธแบบนี้อีกครั้งหนึ่งซึ่งผมก็จะมาพบกับเพื่อนๆ เพื่อที่จะพูดคุยกันถึงหัวข้อ “ความรู้ดีๆ เรื่องประสบการณ์งานคำนวณออกแบบและการก่อสร้าง” นะครับ ในวันนี้ผมจะขออนุญาตมาพาเพื่อนๆ ไปลงรายละเอียดในรายการคำนวณการตรวจสอบหาค่าการเสียรูปภายในหน้าตัดของโครงสร้างคอนกรีตเสริมเหล็กในแต่ละหน้าแต่ละหัวข้อไปพร้อมๆ กันนะ โดยที่ในวันนี้ผมก็จะเริ่มจากหน้าที่ 1 กันก่อนเลย ซึ่งก็คือรูปที่ผมได้นำเอามาประกอบคำอธิบายในวันนี้นะครับ ทั้งนี้ก็จะเริ่มต้นจากการตรวจสอบก่อนว่า โครงสร้างคาน คสล ของผม ซึ่งจากรายการคำนวณจะแสดงให้เห็นว่าคาน คสล ของเรานั้นจะมีขนาดความกว้างประสิทธิผลได้มากที่สุดเท่ากับ 1.00 เมตร หรือ 1,000 มม โดยที่คานก็จะมีขนาดความลึกมากที่สุดได้เท่ากับ 0.70 เมตร หรือ 700 มม และเนื่องจากมีขนาดของความยาวของช่วงว่างของคานนั้นจะมีค่าเท่ากับ 14.5 เมตร หรือ 14,500 มม ดังนั้นเราก็จะสามารถทำการตรวจสอบได้ว่า ในการออกแบบหน้าตัดคาน คสล ของเรานั้น มีความจำเป็นที่จะต้องตรวจสอบหาค่าการเสียรูปหรือไม่โดยการเปรียบเทียบขนาดของความลึกของคาน คสล กับค่าสัดส่วนของความยาวคาน คสล ว่าอยู่ในเกณฑ์ที่ยอมรับได้หรือไม่ ซึ่งเราก็จะใช้กรณีของ คานช่วงเดียวหรือ SIMPLE SPAN BEAM ซึ่งค่าสัดส่วนดังกล่าวก็จะต้องออกมามีค่า L/16 […]
สร้างใหม่โครงสร้างจะมั่นคง ต้องลงเสาเข็มให้ลึกถึงชั้นดินดาน ด้วยเสาเข็มสปันไมโครไพล์ Spun Micro Pile และเสาเข็มไอไมโครไพล์ I-Micropile ภูมิสยาม การก่อสร้างใหม่ ขั้นตอนที่สำคัญที่สุดคือการลงเสาเข็ม เพื่อสร้างความมั่นคงและความปลอดภัยของโครงสร้างในอนาคต และการที่เราจะทราบความสามารถในการรับน้ำหนักของเสาเข็ม ที่แน่นอน จะต้องทำการเจาะสำรวจดิน (SOIL BORING TEST)โดยวิศวกรผู้เชี่ยวชาญ เพื่อให้การออกแบบสิ่งก่อสร้างต่าง ๆ เป็นไปอย่างละเอียดรอบครอบ ถูกต้องตามหลักวิศวกรรม และการตอกเสาเข็มสปันไมโครไพล์ สามารถตอกต่อกันได้โดยการเชื่อม โดยเชื่อมรอบของเสาเข็มทั้งสองท่อน ให้ต่อกันสนิทเป็นแนวเส้นตรง จากนั้นใช้ปั้นจั่นที่ถูกออกแบบมาเป็นพิเศษ ตอกเสาเข็มลงไปทีละท่อน จนได้ความลึก และ BLOW COUNT ที่กำหนด เพื่อจะสามารถเช็คได้ว่าเสาเข็มลงลึกเท่าไหร่ ถ้าหากว่าเส้นที่ขีดไว้อยู่ติดกันมากจนแทบจะเป็นเส้นเดียวกันก็ถือว่าเสาเข็มลงลึกจนถึงชั้นดินแข็งแล้ว ห้ามตอกต่อเพราะจะทำให้เสาเข็มเสียหายได้ ภูมิสยาม ผู้ผลิตและจัดจำหน่ายเสาเข็มสปันไมโครไพล์ และไอไมโครไพล์ มั่นใจได้ว่าการตอกเสาเข็ม จะเป็นไปอย่างถูกต้องตามหลักวิศวกรรม หากสนใจเสาเข็ม สามารถปรึกษาภูมิสยามได้ฟรี เรายินดีให้บริการทั่วประเทศ Miss Spunpile Bhumisiam (ภูมิสยาม) บริษัท ภูมิสยาม ซัพพลาย จำกัด ผู้นำกลุ่มธุรกิจเสาเข็มสปันไมโครไพล์ รายแรกและรายเดียวในประเทศไทย ที่ได้การรับรองมาตรฐาน […]
สวัสดีครับแฟนเพจที่รักทุกๆ ท่าน ในทุกๆ วันศุกร์ (แห่งชาติ) แบบนี้ ผมก็จะมาพบกับเพื่อนๆ เพื่อที่จะได้มาพูดคุยและเสวนากันถึงหัวข้อ “ฝากคำถาม-เราจะมาตอบให้” นะครับ สืบเนื่องมาจากการที่มีรุ่นน้องวิศวกรท่านหนึ่งเค้าคงจะทราบมาว่าตัวผมนั้นเป็นสามัญวิศวกรโยธาที่ทำงานทางด้านการออกแบบและการเสริมกำลังให้แก่โครงสร้างมาก็ไม่น้อย เค้าจึงได้ฝากคำถามสั้นๆ แต่ได้ใจความเข้ามาคำถามหนึ่งในทำนองว่า อยากให้ผมให้ข้อแนะนำเกี่ยวกับเทคนิคการใช้งานซอฟต์แวร์ที่มีกระบวนการวิเคราะห์โครงสร้างด้วยไฟไนต์อีลีเม้นต์ หรือ FINITE ELEMENT ANALYSIS หรือเขียนสั้นๆ ว่า FEA เวลาที่ผมจะต้องทำการออกแบบงานวิศวกรรมโครงสร้างงานใดๆ ก็ตาม ซึ่งพอผมเจอกับคำถามๆ นี้ผมก็นั่งคิดคำตอบอยู่ครู่หนึ่งเพราะเอาเข้าจริงๆ นั้นเทคนิคเกี่ยวกับเรื่องๆ นี้มีอยู่มากมายหลากหลายประการมากๆ แต่เอาเป็นว่าในวันนี้ผมขอเริ่มต้นจากเทคนิคๆ หนึ่งซึ่งถือได้ว่าเป็นพื้นฐานเกี่ยวกับเรื่องๆ นี้เลยแต่ก็ต้องขออนุญาตออกตัวไว้ก่อนเลยว่า เทคนิคที่ผมจะนำเอามาฝากนี้เป็นเทคนิคส่วนตัวเพียงเท่านั้น สุดท้ายใครจะจดจำและนำไปใช้ก็สุดแท้แต่วิศวกรแต่ละท่านได้เลยนะครับ เทคนิคที่ผมตั้งใจนำเอามาฝากเพื่อนๆ ในวันนี้จะมีประโยชน์มากๆ สำหรับกรณีที่เรามีความต้องการที่จะทำการจำลองให้โครงสร้างที่เมื่อสร้างขึ้นมาแล้วพบว่า มีความต่อเนื่องซึ่งกันและกันแต่เราก็ต้องการที่จะไม่ให้เกิดความต่อเนื่องของการถ่ายแรงระหว่างโครงสร้างนั้นๆ ดูตัวอย่างได้จากรูปที่ 1 นั่นก็คือ ผมต้องการที่จะสร้างคานให้มีการวางตัวโดยที่มีตำแหน่งของจุดต่อหรือ NODE ที่มีจุดเดียวกันแต่ว่าโครงสร้างคานสองอันนี้ไม่ได้มีคุณสมบัติเป็นคานที่มีความต่อเนื่องซึ่งกันและกันหรือ CONTINUOUS BEAM เพราะคานสองอันนี้เป็นคานที่ถูกหล่อขึ้นมาจากโรงงาน พูดง่ายๆ ก็คือเมื่อเรายกนำเอาคานสองอันนี้มาวางในสถานที่ก่อสร้าง มันก็จะกลายเป็นคานที่มีคุณสมบัติเป็นเพียงคานที่มีการรับน้ำหนักแบบช่วงเดียวหรือ SIMPLE BEAM เท่านั้นน่ะครับ คำสั่งนี้มีชื่อว่าคำสั่ง “RELEASE” ทั้งนี้ให้เพื่อนๆ ทำการเลือก […]
ไมโครไพล์ หรือเสาเข็มสปันไมโครไพล์ (Spunmicropile) เสาเข็มคุณภาพ มาตรฐาน เหมาะกับการต่อเติมโรงงาน ที่ต้องการความมั่งคงแข็งแรงสูง เสาเข็ม สปันไมโครไพล์ เสาเข็มต่อเติมโรงงาน ยกระดับมาตรฐานโรงงาน ด้วยการเลือกตอกเสาเข็มที่ถูกต้องตามหลักวิศวกรรม สามารถตรวจสอบการรับน้ำหนักได้ และให้เป็นไปตามที่วิศวกรออกแบบ ภูมิสยาม ผู้ผลิตและจัดจำหน่าย เสาเข็มสปันไมโครไพล์ และเสาเข็มไอไมโครไพล์ เราใส่ใจในทุกขั้นตอนการผลิต และติดตั้งเสาเข็ม รวมถึงการบริการอย่างมืออาชีพ พร้อมด้วยทีมงานมากประสบการณ์ เสาเข็มของภูมิสยามได้รับมาตรฐานเสาเข็มคอนกรีตเสริมเหล็กแบบแรงเหวี่ยง มอก.397-2562 และมาตรฐานเสาเข็มคอนกรีตเสริมเหล็กอัดแรงหล่อสำเร็จ มอก.396-2549 มีการทดสอบการรับน้ำหนักของเสาเข็มด้วยวิธีพลศาสตร์ (DYNAMIC LOAD TEST) โดยผลการทดสอบให้ข้อมูลเกี่ยวกับกําลังการรับน้ำหนัก และความสมบูรณ์ของเสาเข็ม เพื่อให้การรับน้ำหนักเป็นไปตามที่วิศวกรออกแบบ และถูกต้องตามหลักวิศวกรรม หมดห่วงเรื่องการรับน้ำหนักของเสาเข็ม และปัญหาการทรุดตัวที่อาจจะเกิดขึ้นได้ ภูมิสยามเราเลือกใช้วัสดุที่มีคุณภาพ พร้อมด้วยทีมงานที่มีประสบการณ์ และการบริการแบบเป็นกันเอง ติดต่อสอบถาม หรือปรึกษาปัญหา ได้ที่ภูมิสยาม เราพร้อมให้บริการ Miss Spunpile Bhumisiam (ภูมิสยาม) บริษัท ภูมิสยาม ซัพพลาย จำกัด ผู้นำกลุ่มธุรกิจเสาเข็มสปันไมโครไพล์ รายแรกและรายเดียวในประเทศไทย ที่ได้การรับรองมาตรฐาน ISO […]
สวัสดีครับแฟนเพจที่รักทุกๆ ท่าน ในทุกๆ วันพฤหัสบดีแบบนี้ ผมก็จะมาพบกับเพื่อนๆ เพื่อที่จะพูดคุยกันถึงหัวข้อ “ความรู้ดีๆ เรื่องวิศวกรรมงานฐานราก งานดินและเสาเข็ม” นะครับ หลังจากที่เมื่อในสัปดาห์ที่แล้วผมได้นำเอาประเด็นคำถามเกี่ยวกับเรื่องความรู้ดีๆ เรื่องวิศวกรรมงานฐานราก งานดินและเสาเข็มในหัวข้อที่ว่า เหตุใดเวลาที่เราทำการคำนวณโครงสร้างเสาเข็มที่มีรูปทรง หรือ มีขนาดกว้างและยาว หรือ มีขนาดเส้นผ่าศูนย์กลาง ที่เท่าๆ กัน แต่โครงสร้างเสาเข็มแบบเจาะจึงมีค่าความสามารถในการรับแรงฝืดหรือ FRICTION FORCE CAPACITY ที่ต่ำกว่าในโครงสร้างเสาเข็มแบบตอก เอามาอธิบายให้แก่เพื่อนๆ ได้รับทราบกันไปเป็นที่เรียบร้อยแล้วนะครับ ดังนั้นในวันนี้ผมจึงจะขออนุญาตมาทำการยกตัวอย่างถึงผลจากการคำนวณในกรณีของโครงสร้างเสาเข็มที่มีหน้าตัดเป็นรูปทรงกลมโดยที่ผมจะทำการเปรียบเทียบระหว่าง โครงสร้างเสาเข็มเจาะ กับ โครงสร้างเสาเข็มสปันไมโครไพล์ โดยเพื่อนๆ จะเห็นได้ในตอนท้ายว่า เมื่อกำหนดให้ปลายล่างสุดของเสาเข็มนั้นอยู่ที่ระดับความลึกเท่าๆ กัน ของชั้นดินชนิดเดียวกันด้วยและถึงแม้ขนาดของโครงสร้างเสาเข็มสปันไมโครไพล์นั้นจะมีขนาดเส้นผ่าศูนย์กลางที่เล็กกว่าแต่สุดท้ายก็ยังให้ผลการคำนวณค่าการรับน้ำหนักปลอดภัยของโครงสร้างเสาเข็มที่สูงกว่าโครงสร้างเสาเข็มเจาะอยู่ดี ซึ่งเพื่อนๆ ก็สามารถที่จะดูข้อมูลจากการคำนวณได้จากรูปประกอบที่ผมได้นำเอามาฝากให้แก่เพื่อนๆ ทุกคนในโพสต์ของวันนี้ได้นะครับ โดยตัวอย่างนี้ผมได้นำเอาข้อมูลจากการทดสอบดินมาจากสถานที่ก่อสร้างแห่งหนึ่งในจังหวัดประจวบคีรีขันธ์ โดยที่ผมได้เลือกนำเอาข้อมูลของชั้นดินที่ระดับความลึกของเสาเข็มเท่ากับ 8 เมตร เท่าๆ กันมาใช้ในการเปรียบเทียบในตัวอย่างข้อนี้ ทั้งนี้เพื่อนๆ จะสามารถเห็นได้ตั้งแต่ค่า SUM OF qf เลยว่าโครงสร้างเสาเข็มสปันไมโครไพล์นั้นจะมีขนาดของค่า SUM OF qf ที่สูงกว่าในกรณีของโครงสร้างเสาเข็มเจาะ […]
สวัสดีครับแฟนเพจที่รักทุกๆ ท่าน กลับมาพบกันในทุกๆ วันจันทร์แบบนี้อีกครั้งหนึ่งซึ่งผมก็จะมาพบกับเพื่อนๆ เพื่อที่จะพูดคุยกันถึงหัวข้อ “ความรู้ดีๆ เพื่อคุณผู้หญิง” นะครับ เมื่อในสัปดาห์ที่แล้วผมได้ทำการอธิบายถึงวิธีในการออกแบบ โครงสร้างแผ่นเหล็กที่จะทำหน้าที่รองรับแรงกดสำหรับโครงสร้างคานเหล็กรูปพรรณ หรือ BEAM BEARING PLATE ซึ่งผมได้ขออนุญาตใช้วิธีในการออกแบบตามมาตรฐาน AISC โดย วิธีการหน่วยแรงที่ยอมให้ หรือ ALLOWABLE STRESS DESIGN หรืออาจจะเรียกสั้นๆ ได้ว่าวิธี ASD ไปเป็นที่เรียบร้อยแล้ว ดังนั้นในวันนี้เพื่อให้เพื่อนๆ สามารถที่จะเกิดความเข้าใจได้ดียิ่งขึ้น ในวันนี้ผมจึงอยากจะขออนุญาตมาทำการยกตัวอย่างในการคำนวณประกอบคำอธิบายของผมด้วย ยังไงเราไปติดตามพร้อมๆ กันได้เลยนะครับ จากรูปในสี่เหลี่ยมสีน้ำเงินที่ผมได้วงเอาไว้ในรูปประกอบในโพสต์ๆ นี้เพื่อนๆ จะเห็นได้ว่าผมมีโครงสร้างคานเหล็กรูปพรรณแบบต่อเนื่อง หรือ CONTINUOUS STEEL BEAM โดยที่จุดรองรับนั้นผมได้ทำการจำลองให้เป็นจุดต่อแบบ PARTIAL FIXED SUPPORT ดังนั้นก็จะมีแรงปฏิกิริยาทั้งแบบ แรงกระทำแบบจุดเดียว หรือ CONCENTRATED FORCE ซึ่งก็จะมีค่าเท่ากับ 6,000 KGF และ แรงกระทำแบบโมเมนต์ หรือ MOMENT FORCE […]
สวัสดีครับแฟนเพจที่รักทุกๆ ท่าน ในทุกๆ วันพฤหัสบดีแบบนี้ ผมก็จะมาพบกับเพื่อนๆ เพื่อที่จะพูดคุยกันถึงหัวข้อ “ความรู้ดีๆ เรื่องวิศวกรรมงานฐานราก งานดินและเสาเข็ม” นะครับ เนื่องจากเมื่อในสัปดาห์ที่แล้วผมได้นำเอาบทความที่เขียนโดยท่านอาจารย์ ดร.พัลลภ วิสุทธิ์เมธานุกูล ผู้เขียนหนังสือ “คู่มือวิศวกรรมฐานราก” เอามาฝาก ซึ่งบทความๆ นี้จะมีความเกี่ยวข้องกันกับเรื่อง “ค่าสปริง (K) ของดินสำหรับนำไปใช้ใน STRUCTURAL MODEL และความเข้าใจผิดบางประการเกี่ยวกับเรื่องๆ นี้ ซึ่งผมก็ได้อธิบายเพิ่มเติมไปว่า เมื่อเราพูดถึงเกี่ยวกับเรื่อง INTERACTION ระหว่าง SOIL-PILE ผมมักจะพูดอยู่เสมอว่าเพื่อนๆ ควรที่จะต้องมีความรู้และความเข้าใจให้ลึกซึ้งเสียก่อนที่จะนำเอาไปใช้ เช่น นอกจากดูค่า qall แล้วยังต้องดูค่าอื่นๆ ร่วมด้วยเสมอ ไม่ว่าจะเป็นค่า WATER CONTENT ของดินที่เหมาะสมซึ่งจะเป็นการ ENSURE ในเรื่องของค่า ALLOWABLE SETTLEMENT ที่เราจะนำมาใช้ในการคำนวณหาเป็นค่า SOIL SPRING ด้วย เป็นต้น ซึ่งก็มีเพื่อนๆ ของผมหลายคนเลยสอบถามเข้ามาว่า แล้ว ค่าการทรุดตัวมากที่สุด หรือ […]
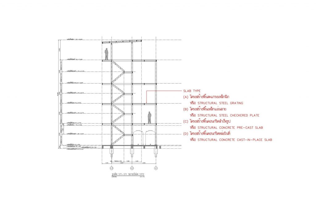
สวัสดีครับแฟนเพจที่รักทุกๆ ท่าน กลับมาพบกันในทุกๆ วันเสาร์แบบนี้อีกครั้งหนึ่งซึ่งผมก็จะมาพบกับเพื่อนๆ เพื่อที่จะพูดคุยกันถึงหัวข้อ “ถาม-ตอบชวนสนุก” กันนะครับ โดยที่ในวันนี้ประเด็นที่ผมได้เลือกนำเอามาตั้งเป็นคำถามประจำสัปดาห์นั้นจะมีความเกี่ยวข้องกันกับเรื่อง ความรู้ดีๆ เรื่องประสบการณ์งานคำนวณออกแบบและการก่อสร้าง ที่ผมได้ทำการโพสต์ถึงในสัปดาห์ที่ผ่านมาและก็เหมือนเช่นเคยผมคงจะต้องออกตัวอีกครั้งหนึ่งว่า คำถามประจำสัปดาห์นี้สุดแสนจะง่ายมากๆๆๆๆๆๆๆๆๆ โดยที่โจทย์ในวันนี้ก็คือ หากเพื่อนๆ มีความประสงค์ที่จะทำการก่อสร้างต่อเติมส่วนของอาคารเพื่อที่จะใช้เป็นบันไดหนีไฟที่มีขนาดความสูงเท่ากับ 5 ชั้น (รวมชั้นดาดฟ้า) ซึ่งทางสถาปนิกได้เลือกทำการออกแบบและก่อสร้างโดยใช้วัสดุหลักเป็นโครงสร้างเหล็กรูปพรรณ โดยที่อาคารหลังนี้มีจุดประสงค์ในการใช้งานเป็นอาคารถาวร หรือ PERMANENT BUILDING มิใช่อาคารชั่วคราว หรือ TEMPORARY BUILDING คำถามในวันนี้ก็คือ เพื่อให้อายุการใช้งานของอาคารนั้นเป็นปกติ และ มีสมรรถนะในการใช้งานที่ดี ผมควรที่จะเลือกระบบโครงสร้างพื้นแบบใดเพื่อใช้เป็นพื้นของห้องๆ นี้ระหว่าง (A) โครงสร้างพื้นตะแกรงเหล็กฉีก หรือ STRUCTURAL STEEL GRATING (B) โครงสร้างพื้นเหล็กแผ่นลาย หรือ STRUCTURAL STEEL CHECKERED PLATE (C) โครงสร้างพื้นคอนกรีตสำเร็จรูป หรือ STRUCTURAL CONCRETE PRE-CAST SLAB (D) โครงสร้างพื้นคอนกรีตหล่อในที่ […]
- 1
- 2










