เหล็กเสริมต้านทานต่อแรงดัด ที่เกิดขึ้นในแผ่นพื้น

สวัสดีครับแฟนเพจที่รักทุกๆ ท่าน

วันนี้ผมจะขออนุญาตมาทำการโพสต์และแชร์ความรู้เกี่ยวกับเรื่อง ความรู้ทางด้านงานออกแบบที่เกี่ยวข้องกันกับการทำงานทางด้านวิศวกรรมโครงสร้างที่อยู่ เหนือพื้นดินขึ้นมา และ ใต้พื้นดินลงไป มาฝากเพื่อนๆ ทุกคนนะครับ

วันนี้ผมจะขออนุญาตมาทำการพูดถึงเรื่อง เหล็กเสริมต้านทานต่อแรงดัดที่เกิดขึ้นในแผ่นพื้น ซึ่งถือได้ว่าเป็นเหล็กเสริมประเภทหนึ่งที่เราจำเป็นต้องทำการพิจารณาให้ต้องทำการเสริมอยู่ในแผ่นพื้นชนิดวางตัวอยู่บนคานที่เป็น แผ่นพื้นทางเดียว และ แผ่นพื้นสองทาง ให้แก่เพื่อนๆ ทุกๆ คนได้รับทราบกันนะครับ

 

ในหัวข้อนี้จะค่อนข้างยาวหน่อยนะครับเพราะต้องทำความเข้าใจเสียก่อนว่าแผ่นพื้นชนิดวางตัวอยู่บนคานที่เป็นแผ่นพื้นทางเดียวและแผ่นพื้นสองทางนั้นจะมีวิธีและขั้นตอนในการวิเคราะห์โครงสร้างเพื่อที่จะหาค่าแรงดัดสำหรับการออกแบบที่มีรายละเอียดที่แตกต่างกันแต่พอได้ค่าแรงดัดสำหรับการออกแบบดังกล่าวนี้มาแล้วก็จะพบว่าทั้งวิธีการและขั้นตอนในการคำนวณหาปริมาณของเหล็กเสริมภายในหน้าตัดของแผ่นพื้นนั้นจะมีความเหมือนกันเลยก็ว่าได้และสำหรับการคำนวณและออกแบบหน้าตัดของโครงสร้าง คสล เพื่อที่จะหาปริมาณของเหล็กเสริมในแผ่นพื้น ผมก็จะขออ้างอิงไปที่มาตรฐานการออกแบบของ ACI318-89 และจะขอหยิบยกและทำการอธิบายโดยอาศัยวิธีกำลัง หรือ STRENGTH DESIGN METHOD ก็แล้วกันนะครับ

 

ดังนั้นเอาเป็นว่าในวันนี้ผมอยากที่จะขออนุญาตเริ่มต้นการอธิบายและยกตัวอย่างการวิเคราะห์โครงสร้างเพื่อที่จะทำการคำนวณหาค่าแรงดัดสำหรับการออกแบบแผ่นพื้นชนิดวางตัวอยู่บนคานที่เป็น แผ่นพื้นทางเดียว ก่อนก็แล้วกันนะครับ

 

หลักการในการคำนวรหาค่าแรงดัดสำหรับการออกแบบสำหรับแผ่นพื้นชนิดวางตัวอยู่บนคานที่เป็น แผ่นพื้นทางเดียว นั้นจะค่อนข้างมีความง่ายดายและตรงไปตรงมามากๆ เลยนะครับ นั่นก็คือ พิจารณาเหมือนกับว่าแผ่นพื้นทางเดียวนั้นๆ เป็นเสมือนคานรับแรงดัดนั่นเอง เพียงแต่วิธีการพิจารณาความกว้างของแผ่นพื้นทางเดียวนั้นให้คิดต่อ 1 หน่วยความกว้าง ซึ่งในบ้านเรานิยมที่จะใช้หน่วย เมตร ดังนั้นก็จะทำให้เรานิยมคิดความกว้างของพื้นเท่ากับ 1 เมตร นั่นเอง อธิบายแค่นี้ก็น่าจะเข้าใจได้ง่ายๆ แล้วนะครับ เอาเป็นว่าเรามาดูตัวอย่างกันเลยก็แล้วกัน

 

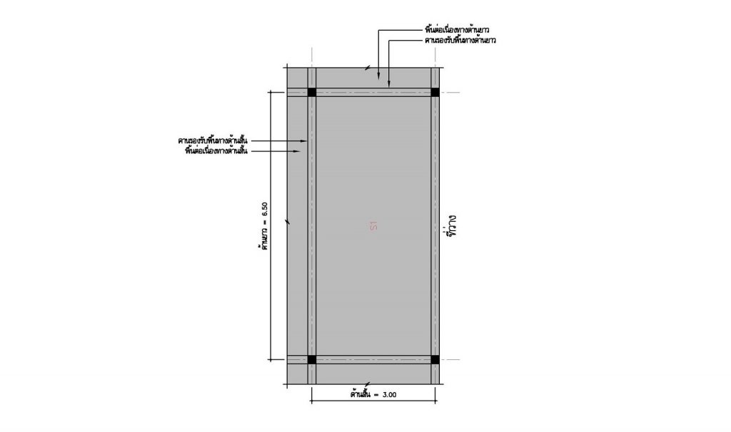
ผมมีพื้น S1 ดังที่ได้แสดงอยู่ในรูป โดยที่พื้นแผ่นนี้จะวางตัวอยู่บนคาน คสล ซึ่งมีขนาดความกว้างเท่ากับ 200 มม และพื้นแผ่นนี้จะมีขนาดของความหนาเท่ากับ 125 มม ทั้งนี้พื้นแผ่นนี้จะต้องทำหน้าที่ในการรับน้ำหนักบรรทุกคงที่ใช้งานดังต่อไปนี้ วัสดุปูทับผิวหน้าเท่ากับ 50 KSM น้ำหนักของปูนทรายปรับระดับความหนา 50 มม และท้ายที่สุดคือน้ำหนักบรรทุกจรใช้งานซึ่งจะมีค่าเท่ากับ 300 KSM จงทำการคำนวณหาค่าแรงดัดสำหรับแผ่นพื้นแผ่นนี้

 

หมายเหตุ ที่มาของตัวย่อ KSM ก็คือ KILOGRAMFORCE PER SQUARE METERS หรือในภาษาไทยคือ กิโลกรัม (แรง) ต่อ ตารางเมตร นะครับ

 

ขั้นตอนแรกเพื่อเป็นการทำให้แน่ใจก่อนเริ่มต้นการคำนวณ เราก็ควรที่จะทำการตรวจสอบเสียก่อนว่าแผ่นพื้นๆ นี้จะถือได้ว่าเป็นแผ่นพื้นแบบ ทางเดียว จริงๆ โดยการคำนวณจากค่า SPAN RATIO หรือ อัตราส่วนทาง ด้านยาว (L) ต่อ ด้านสั้น (B) นั่นก็คือด้านยาว จะมีค่าเท่ากับ 6.50 เมตร และด้านสั้นจะมีค่าเท่ากับ 3.00 เมตร ทำให้อัตราส่วนนี้มีค่าเท่ากับ

 

SPAN RATIO = 6.50 / 3.00 = 2.17 > 2.00

 

โดยเมื่อพิจารณาแล้วก็จะพบว่าอัตราส่วนนี้มีค่ามากกว่า 2.00 ดังนั้นพื้นแผ่นนี้จึงเป็นพื้นแบบ ทางเดียว และหลังจากพิจารณาดูแล้วก็จะพบด้วยว่าแผ่นพื้นๆ นี้มีคานรองรับทั้ง 4 ด้าน โดยที่มีพื้นต่อเนื่องในด้านยาว 2 ด้าน และต่อเนื่องในด้านสั้น 1 ด้าน เราจึงสามารถจำแนกได้แล้วว่าแผ่นพื้นแผ่นนี้เป็นแผ่นพื้นชนิดวางตัวอยู่บนคานแบบทางเดียวที่จะมีช่วงพาดเท่ากับระยะของด้านสั้น นั่นก็คือเท่ากับ 3.00 เมตร ซึ่งก็จะทำให้พื้น S1 นี้เป็นพื้นช่วงนอกที่จะมีช่วงต่อเนื่องเท่ากับ 1 ด้านเท่านั้น

 

ขั้นตอนต่อมาก็คือทำการวิเคราะห์หาน้ำหนักบรรทุกใช้งาน หรือ SERVICE LOAD ของแผ่นพื้นแผ่นนี้ โดยอาจจะต้องเริ่มต้นคำนวณให้ทราบเสียก่อนว่า ขนาดของความหนาของแผ่นพื้นที่โจทย์ข้อนี้ให้มานั้นมีความเพียงพอหรือไม่ หากว่าความหนาที่ให้มาเกิดไม่เพียงพอ ก็อาจจะจำเป็นที่จะต้องทำการคำนวณหาค่าระยะการโก่งตัวของแผ่นพื้นภายหลังจากที่ได้ทำการออกแบบหน้าตัดของพื้นแผ่นนี้แล้วเสร็จด้วยนะครับ

 

จากตารางที่ผมเคยหยิบยกมาอธิบายก่อนหน้านี้พบว่า ค่าความหนาต่ำที่สุดของพื้นแผ่นนี้ที่จะสามารถใช้ได้โดยที่ไม่ต้องทำการคำนวณหาค่าระยะการดก่งตัวก็คือเท่ากับ Ln / 24 ดังนั้นจากค่าความกว้างของคานที่โจทย์ข้อนี้ให้มาซึ่งมีค่าเท่ากับ 200 มม ทำให้ค่า Ln นั้นมีค่าเท่ากับ

 

Ln = Bn

Bn = 3.00 x 1000 – 200

Bn = 3000 – 200

Bn = 2800 mm

 

ดังนั้นจะทำให้ค่าความหนาต่ำที่สุดที่จะใช้ได้ของพื้นแผ่นนี้มีค่าเท่ากับ

 

T min = Bn / 24

T min = 2800 / 24

T min = 117 มม

 

ซึ่งก็จะพบว่าค่า T min นั้นมีค่าน้อยกว่าความหนาของแผ่นพื้นซึ่งมีค่าเท่ากับ 125 มม ดังนั้นจึงอาจสรุปได้ว่า หากใช้ค่าขนาดความหนาตามที่โจทย์ได้ให้มาก็ไม่มีความจำเป็นที่จะต้องทำการคำนวณและตรวจสอบค่าระยะการโก่งตัวของแผ่นพื้นแผ่นนี้นั่นเองครับ

 

ต่อมาก็เริ่มต้นทำการคิดและคำนวณหาค่าน้ำหนักบรรทุกคงที่ใช้งานบนพื้นเสียก่อน โดยเริ่มจากค่าน้ำหนักบรรทุกของตัวโครงสร้างเองหรือที่เรานิยมเรียกกันว่า SELFWEIGHT-DEADLOAD ของโครงสร้างนะครับ

 

DL1 = SW.DL

DL1 = 0.125 x 2400

DL1 = 300 KSM

 

ต่อมาก็คือทำการคำนวณหาค่าน้ำหนักบรรทุกคงที่ใช้งานที่มีลักษณะเป็นแบบ SUPERIMPOSED หรือที่เรานิยมเรียกกันว่า SUPERIMPOSED-DEADLOAD บนโครงสร้างนะครับ

 

DL2 = SDL

DL2 = 50 + 0.05 x 2400

DL2 = 50 + 120

DL2 = 170 KSM

 

ดังนั้นค่าน้ำหนักบรรทุกคงที่ทั้งหมดบนแผ่นพื้นก็จะมีค่าเท่ากับ

 

DL = DL1 + DL2

DL = 300 + 170

DL = 470 KSM

 

และสุดท้ายคือทำการคำนวณหาค่าน้ำหนักบรรทุกจรใช้งานที่มีลักษณะเป็นแบบ SUPERIMPOSED หรือที่เรานิยมเรียกกันว่า SUPERIMPOSED-LIVELOAD บนโครงสร้างนะครับ

 

LL= SLL

LL = 300 KSM

 

ต่อมา หากผมทำการอ้างอิงตามมาตรฐาน ACI318-89 เราก็จะพบว่าค่าตัวคูณ หรือ LOAD FACTOR เพิ่มค่าสำหรับน้ำหนักบรรทุกคงที่และน้ำหนักบรรทุกจรนั้นจะมีค่าเท่ากับ 1.40 และ 1.70 ตามลำดับ จะทำให้เราสามารถที่จะทำการคำนวณหาค่าน้ำหนักบรรทุกประลัย หรือ ULTIMATE LOAD บนแผ่นพื้นแผ่นนี้ได้จาก

 

Qu = 1.4DL + 1.7LL

Qu = 1.4 x 470 + 1.7 x 300

Qu = 1168 KSM

 

ขั้นตอนต่อมาก็อย่างที่ผมได้เรียนไปตั้งแต่ตอนต้นว่า สำหรับแผ่นพื้นทางเดียวเราจะสามารถทำการคำนวณและวิเคราะห์โครงสร้างได้โดยง่ายเลยจากการวิเคราะห์แผ่นพื้นโดยพิจารณาให้เป็นเหมือนคานรับแรงดัด โดยที่ให้ทำการตัดความกว้างของแผ่นพื้นออกมาเท่ากับ 1 เมตร ดังนั้นค่าน้ำหนักบรรทุกที่เราจะนำไปใช้ในการออกแบบจะมีค่าเท่ากับ

 

Wu = Qu x 1.00

Wu = 1168 x 1.00

Wu = 1168 KGF / M / BAY STRIP = 1 M

 

ขั้นตอนสุดท้ายก็คือ ขั้นตอนของการวิเคราะห์โครงสร้างนั่นเอง โดยที่ในขั้นตอนนี้เราอาจที่จะเลือกใช้วิธีการใดก็ได้ที่เรามีความสะดวกนะครับ เช่น ใช้ซอฟต์แวร์ทาง FINITE ELEMENT ใช้การคำนวณด้วยมือโดยอาศัยวิธีประมาณการ หรือ APPROXIMATE METHOD ใช้การคำนวณด้วยมือโดยอาศัยวิธีโดยละเอียด หรือ EXACT METHOD เป็นต้นครับ

 

ทั้งนี้สำหรับการยกตัวอย่างในครั้งนี้ผมจะขออนุญาตใช้วิธีการค่าสัมประสิทธิ์ก็แล้วกันนะครับ ทั้งนี้ค่าแรงดัดออกแบบที่จะทำการคำนวณได้จะมีทั้งหมดเท่ากับ 2 ค่า หลักๆ นั่นก็คือ แรงดัดแบบบวก ซึ่งจะทำให้ผิวล่างของแผ่นพื้นนั้นเกิดเป็นแรงดึง ซึ่งจะเป็นตัวแทนของแรงดัดที่เกิดขึ้นตรงช่วงกลางของความยาวทางด้านสั้นของแผ่นพื้น ซึ่งก็จะใช้ค่า Bn เป็นตัวแทนความยาวของช่วง และ คือ แรงดัดแบบลบ ซึ่งจะทำให้ผิวบนของแผ่นพื้นนั้นเกิดเป็นแรงดึง ซึ่งจะเป็นตัวแทนของแรงดัดที่เกิดขึ้นตรงช่วงที่มีความต่อเนื่องทางด้านสั้นของแผ่นพื้น ซึ่งก็จะใช้ค่า B เป็นตัวแทนความยาวของช่วง

 

ดังนั้นค่าแรงดัดประลัยแบบบวก หรือ POSITIVE ULTIMATE MOMENT ซึ่งเราจะต้องนำไปใช้ในการคำนวณหาค่าปริมาณเหล็กเสริมที่บริเวณด้านล่างของแผ่นพื้นก็จะสามารถทำการคำนวณหาได้จาก

 

Mu (POS.) = Wu x Bn^(2) / 11

Mu (POS.) = 1168 x 2.80^(2) / 11

Mu (POS.) = 833 KGF-M / BAY STRIP = 1 M

 

ดังนั้นค่าแรงดัดประลัยแบบลบ หรือ NEGATIVE ULTIMATE MOMENT ซึ่งเราจะต้องนำไปใช้ในการคำนวณหาค่าปริมาณเหล็กเสริมที่บริเวณด้านบนของแผ่นพื้นก็จะสามารถทำการคำนวณหาได้จาก

 

Mu (NEG.) = Wu x B^(2) / 9

Mu (NEG.) = 1168 x 3.00^(2) / 9

Mu (NEG.) = 1168 KGF-M / BAY STRIP = 1 M

 

พอเราคำนวณได้ค่าทั้งสองนี้เสร็จเป็นที่เรียบร้อยแล้ว เราก็จะนำค่าทั้งสองนี้ไปทำการคำนวณหาปริมาณของเหล็กเสริม ซึ่งผมจำเป็นที่จะต้องขออนุญาตเพื่อนๆ เก็บเอาไว้เพื่อทำการอธิบายในครั้งต่อๆ ไปก็แล้วกันนะครับ มิเช่นนั้นอาจจะทำให้การโพสต์ในครั้งนี้มีความยืดยาวออกไปมากกว่านี้อีก ซึ่งผมก็แค่มีความกังวลว่า หากว่ามันยืดยาวมากจนเกินไปก็อาจจะกลายเป็นว่าเพื่อนๆ หลายๆ คนจะมองว่ามันน่าเบื่อจนเกินไปน่ะครับ

 

ในครั้งต่อไปผมจะขออนุญาตอธิบายและยกตัวอย่างถึงเรื่อง เหล็กเสริมต้านทานต่อแรงดัดที่เกิดขึ้นในแผ่นพื้นสำหรับกรณีของแผ่นพื้นสองทางและในครั้งต่อไปอีกผมถึงค่อยมาพูดถึงเรื่อง วิธีในการคำนวณออกแบบหาปริมาณของเหล็กเสริมในแผ่นพื้นทั้งแบบทางเดียวและสองทางเพื่อให้เพื่อนๆ ทุกคนได้รับทราบกันนะครับ หากว่าเพื่อนๆ ท่านใดที่มีความสนใจในหัวข้อๆ นี้เป็นพิเศษก็สามารถที่จะติดตามรับชมบทความนี้ของผมได้ในสัปดาห์หน้าครับ

 

หวังว่าความรู้เล็กๆ น้อยๆ ที่ผมได้นำมาฝากแก่เพื่อนๆ ทุกๆ ท่านในวันนี้จะมีประโยชน์ต่อทุกๆ ท่านไม่มากก็น้อย และ จนกว่าจะพบกันใหม่นะครับ

#ความรู้เกี่ยวกับการออกแบบโครงสร้างเหนือและใต้ดิน

#ความรู้และการยกตัวอย่างถึงเรื่องเหล็กเสริมต้านทานต่อแรงดัดที่เกิดขึ้นในแผ่นพื้นสำหรับกรณีของแผ่นพื้นทางเดียว

ADMIN JAMES DEAN


บริษัท ภูมิสยาม ซัพพลาย จำกัด ผู้นำกลุ่มธุรกิจเสาเข็มสปัน ไมโครไพล์ รายแรกและรายเดียวในประเทศไทย ที่ได้การรับรองมาตรฐาน ISO 45001:2018 การจัดการอาชีวอนามัยและความปลอดภัย การให้บริการตอกเสาเข็ม The Provision of Pile Driving Service และได้รับการรับรอง ISO 9001:2015 ของระบบ UKAS และ NAC รายแรกและรายเดียวในประเทศไทย ที่ได้รับการรับรองระบบบริหารงานคุณภาพ ตามมาตรฐานในกระบวนการ การออกแบบเสาเข็มสปันไมโครไพล์ การผลิตเสาเข็มสปันไมโครไพล์ และบริการตอกเสาเข็มเสาเข็มสปันไมโครไพล์ (Design and Manufacturing of Spun Micropile/Micropile and Pile Driving Service) Certified by SGS (Thailand) Ltd.

บริษัท ภูมิสยาม ซัพพลาย จำกัด คือผู้ผลิตรายแรกและรายเดียวในไทย ที่ได้รับการรับรองคุณภาพ Endoresed Brand จาก SCG ด้านการผลิตเสาเข็ม สปันไมโครไพล์ และได้รับเครื่องหมาย มาตรฐาน อุตสาหกรรม มอก. 397-2524 เสาเข็มสปันไมโครไพล์ Spun Micro Pile พร้อมรับประกันผลงาน และความเสียหายที่เกิดจากการติดตั้ง 7+ Year Warranty เสาเข็มมีรูกลมกลวงตรงกลาง การระบายดินทำได้ดี เมื่อตอกแล้วแรงสั่นสะเทือนน้อยมาก จึงไม่กระทบโครงสร้างเดิม หรือพื้นที่ข้างเคียง ไม่ต้องขนดินทิ้ง ตอกถึงชั้นดินดานได้ ด้วยเสาเข็มคุณภาพมาตรฐาน มอก. การผลิตที่ใช้เทคโนโลยีที่ทันสมัย จากประเทศเยอรมัน เสาเข็มสามารถทำงานในที่แคบได้ หน้างานสะอาด ไม่มีดินโคลน เสาเข็มสามารถรับน้ำหนักปลอดภัยได้ 15-50 ตัน/ต้น ขึ้นอยู่กับขนาดเสาเข็มและสภาพชั้นดิน แต่ละพื้นที่ ทดสอบโดย Dynamic Load Test ด้วยคุณภาพและการบริการที่ได้มาตรฐาน เสาเข็มเราจึงเป็นที่นิยมในงานต่อเติม

รายการเสาเข็มภูมิสยาม

1. สี่เหลี่ยม S18x18 cm.

รับน้ำหนัก 15-20 ตัน/ต้น

2. กลม Dia 21 cm.

รับน้ำหนัก 20-25 ตัน/ต้น

3. กลม Dia 25 cm.

รับน้ำหนัก 25-35 ตัน/ต้น

4. กลม Dia 30 cm.

รับน้ำหนัก 30-50 ตัน/ต้น

(การรับน้ำหนักขึ้นอยู่กับสภาพชั้นดินในแต่ละพื้นที่)

☎ สายด่วนภูมิสยาม:
082-790-1447
082-790-1448
082-790-1449
091-947-8945
081-634-6586

? Web:
bhumisiam.com
micro-pile.com
spun-micropile.com
microspunpile.com
bhumisiammicropile.com